我的植物

 找回密码
 立即注册

QQ登录

只需一步,快速开始

查看: 105|回复: 0

[别墅] T109

[复制链接]

8万

主题

50

回帖

7799

积分

管理员

Rank: 9Rank: 9Rank: 9

积分
7799
发表于 2023-11-4 15:28:00 | 显示全部楼层 |阅读模式
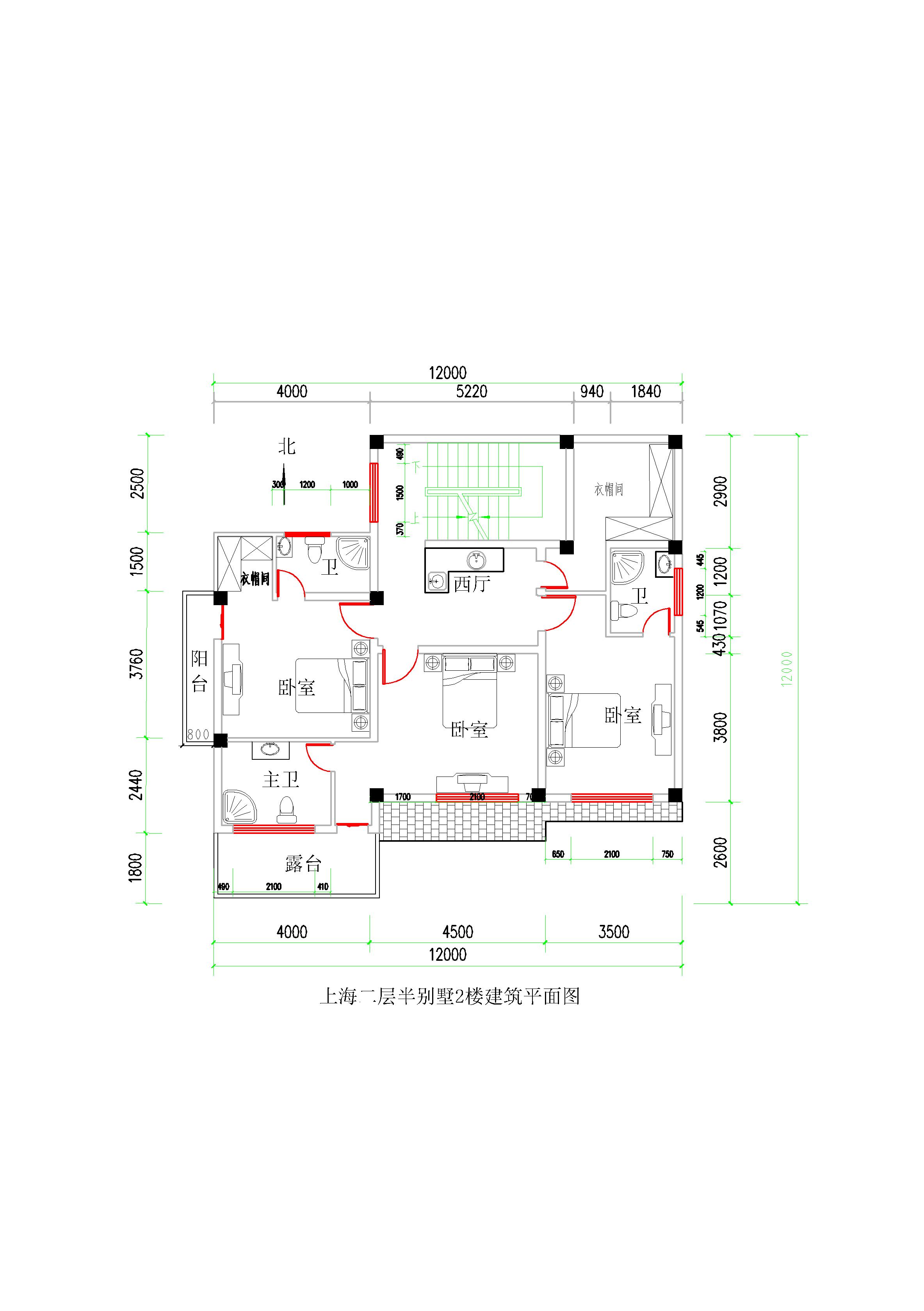
本户型为地上二层独栋别墅,占地面积144平米,建筑檐口高度6.6米,总高度8.34米。有一地下室,地下室设有储藏间、健身房、车库、工具间;一层设有门厅、客厅、餐厅、厨房、卧室、卫生间、影音厅;二层设有卧室3间,卫生间3间、衣帽间、西厅。
本户型采用平屋顶与坡屋顶相结合,外观造型简洁大方,色彩明快,房间尺度设计适宜,空间利用率高。

占地面积12m*12m=144平米。


本户型施工图是导出jpg格式的清晰图,不是cad设计的原图。
别墅1214.jpg
星际中-1.jpg
星际中-2.jpg
星际中-3.jpg
星际中-4.jpg
星际中-5.jpg
星际中-6.jpg
星际中-7.jpg
星际中-8.jpg
您需要登录后才可以回帖 登录 | 立即注册

本版积分规则

Archiver|手机版|小黑屋|网站地图|我的植物 ( 京ICP备15066774号-2 )|网站地图

GMT+8, 2026-3-15 19:43 , Processed in 0.032637 second(s), 32 queries .

Powered by Discuz! X3.4

© 2001-2023 Discuz! Team.

快速回复 返回顶部 返回列表