我的植物

 找回密码
 立即注册

QQ登录

只需一步,快速开始

查看: 67|回复: 0

[别墅] 别墅平面图加效果图4

[复制链接]

8万

主题

50

回帖

7799

积分

管理员

Rank: 9Rank: 9Rank: 9

积分
7799
发表于 2023-11-4 16:56:38 | 显示全部楼层 |阅读模式
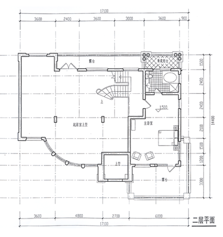
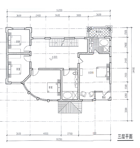
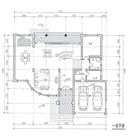
Sketchup 模型 2023年11-04日整理,别墅设计图纸及效果图大全06(重点查看)三层别墅图纸,CAD文件,DWG格式,免费下载,免积分下载
请关注:www.wodezhiwu.com
别墅平面图加效果图42.gif 别墅平面图加效果图43.gif 别墅平面图加效果图44.gif 别墅平面图加效果图45.gif 别墅平面图加效果图4.gif 别墅平面图加效果图4.jpg
您需要登录后才可以回帖 登录 | 立即注册

本版积分规则

Archiver|手机版|小黑屋|网站地图|我的植物 ( 京ICP备15066774号-2 )|网站地图

GMT+8, 2026-3-15 16:20 , Processed in 0.034787 second(s), 33 queries .

Powered by Discuz! X3.4

© 2001-2023 Discuz! Team.

快速回复 返回顶部 返回列表