我的植物

 找回密码
 立即注册

QQ登录

只需一步,快速开始

查看: 91|回复: 0

[别墅] H三层别墅图纸085

[复制链接]

8万

主题

50

回帖

7799

积分

管理员

Rank: 9Rank: 9Rank: 9

积分
7799
发表于 2023-11-4 17:50:59 | 显示全部楼层 |阅读模式
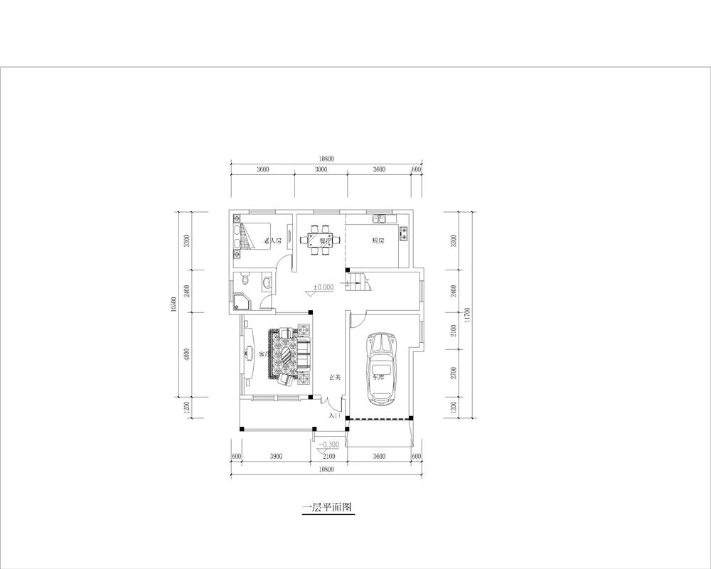
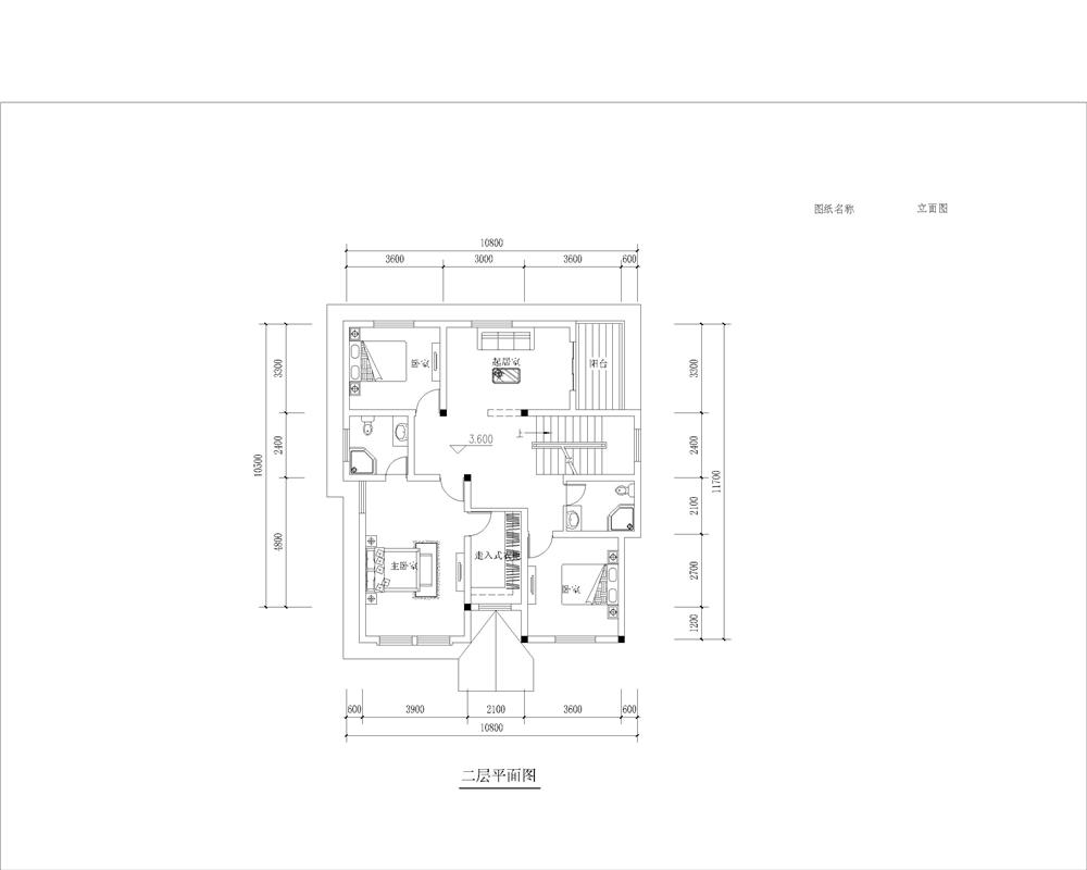
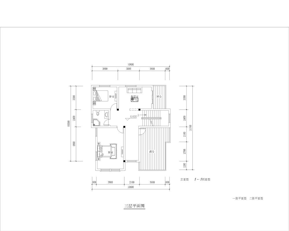
户型是单家独院式,占地面积113.4平米,建筑高度9.9米。一层设有车库、客厅、餐厅、厨房、老人房、卫生间;二层设有主卧室、卧室两间、起居室一间、卫生间两间、走入式衣柜一间;三层设有两间卧室、大露台、1间卫生间和起居室。
本户型采用平屋顶与坡屋顶相结合,外观造型简洁大方,房间尺度设计适宜,空间利用率高。

10.8*10.5=113.4
H三层别墅图纸0856.JPG
H三层别墅图纸0855.JPG
H三层别墅图纸0854.JPG
H三层别墅图纸0853.JPG
H三层别墅图纸0852.JPG
H三层别墅图纸0857.JPG
H三层别墅图纸085.JPG
您需要登录后才可以回帖 登录 | 立即注册

本版积分规则

Archiver|手机版|小黑屋|网站地图|我的植物 ( 京ICP备15066774号-2 )|网站地图

GMT+8, 2026-3-15 16:19 , Processed in 0.032664 second(s), 33 queries .

Powered by Discuz! X3.4

© 2001-2023 Discuz! Team.

快速回复 返回顶部 返回列表