我的植物

 找回密码
 立即注册

QQ登录

只需一步,快速开始

查看: 96|回复: 0

[别墅] H三层别墅图纸010

[复制链接]

8万

主题

50

回帖

7799

积分

管理员

Rank: 9Rank: 9Rank: 9

积分
7799
发表于 2023-11-4 17:53:10 | 显示全部楼层 |阅读模式
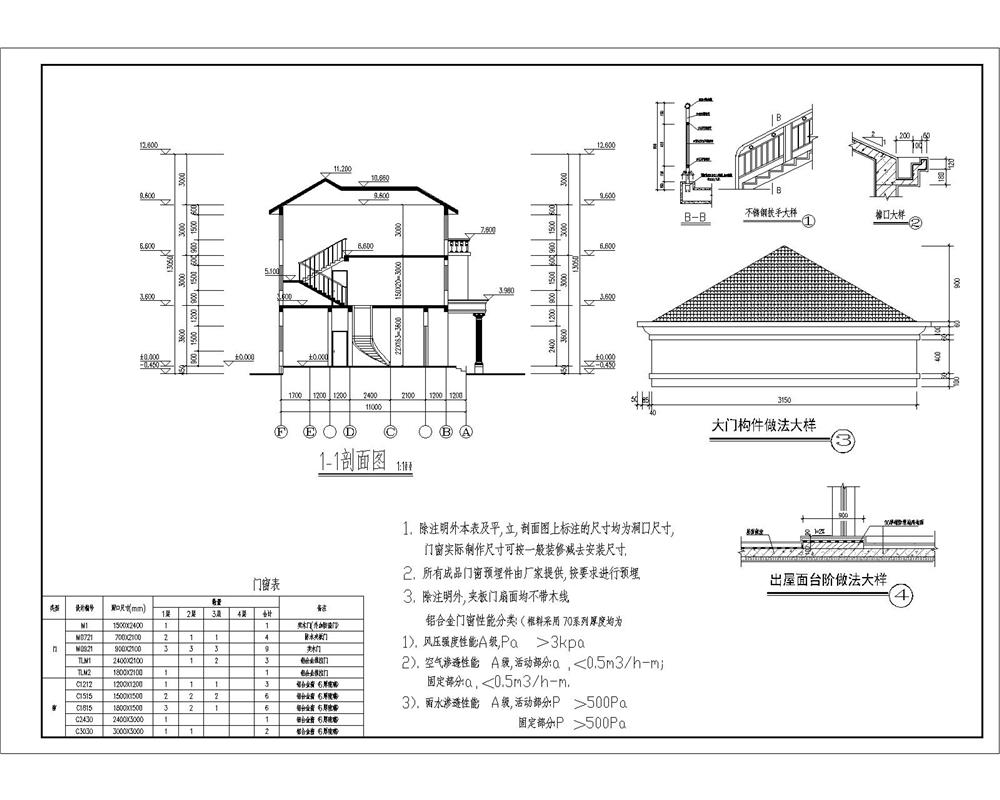
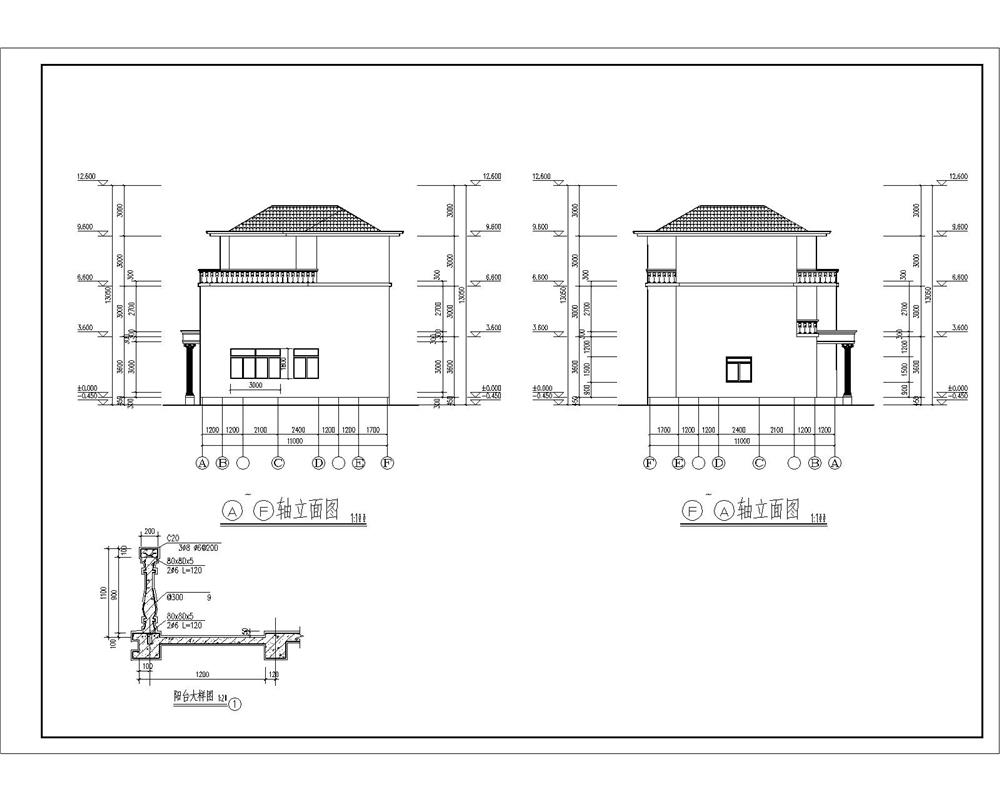
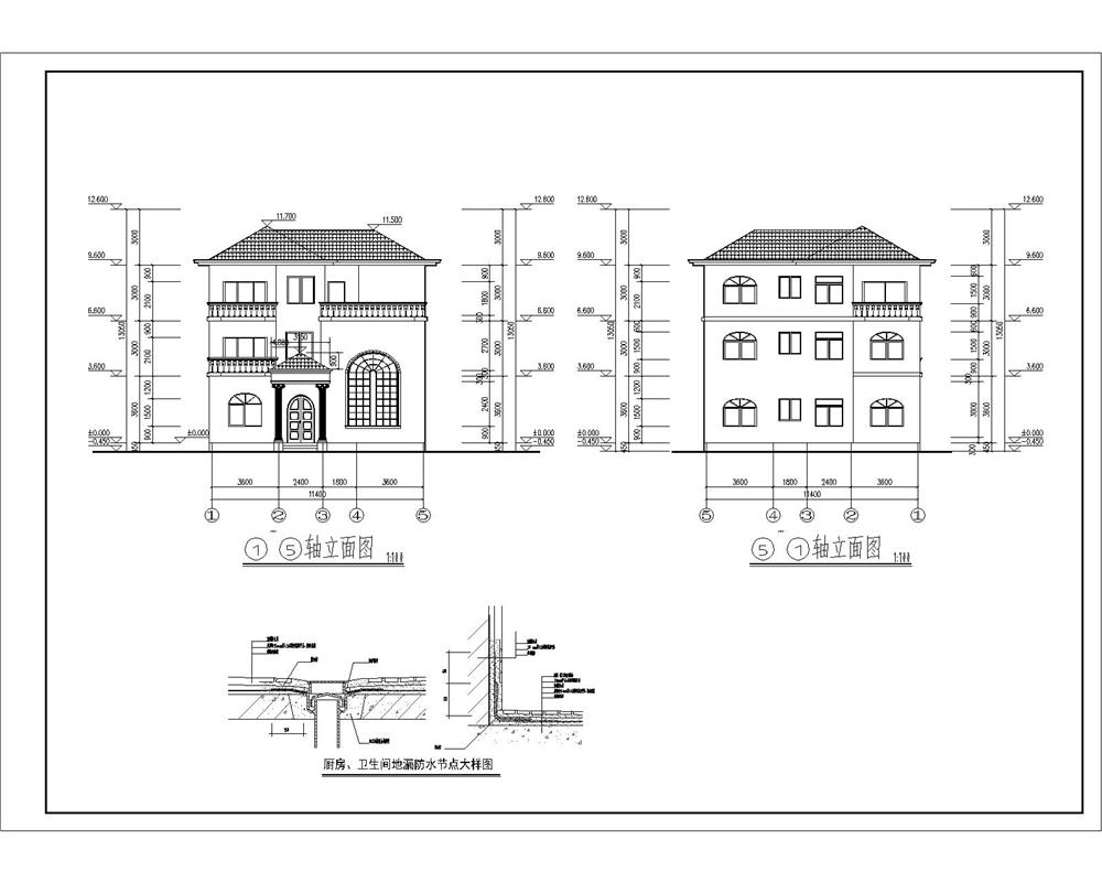
户型为单家独院式,占地面积150平方米,总建筑面积410平方米,总高度12.6米。一层设有客厅、餐厅、卧室、卫生间、佣人房、洗衣房;二层设有主卧室、起居室、卧室、卫生间、阳台;三层设有健身房、露台、阳台、卧室、卫生间及休息平台;

本户型平面布置紧凑,采光通风良好,坡顶造型简洁,美观大方,色彩清新淡雅,具有浓郁的田园气息。
H三层别墅图纸0102.JPG
H三层别墅图纸0103.JPG
H三层别墅图纸0104.JPG
H三层别墅图纸0105.JPG
H三层别墅图纸0106.JPG
H三层别墅图纸0107.JPG
H三层别墅图纸0108.JPG
H三层别墅图纸010.JPG
您需要登录后才可以回帖 登录 | 立即注册

本版积分规则

Archiver|手机版|小黑屋|网站地图|我的植物 ( 京ICP备15066774号-2 )|网站地图

GMT+8, 2026-3-15 19:02 , Processed in 0.032927 second(s), 34 queries .

Powered by Discuz! X3.4

© 2001-2023 Discuz! Team.

快速回复 返回顶部 返回列表